| |
Office Floor Layout Options
|
|

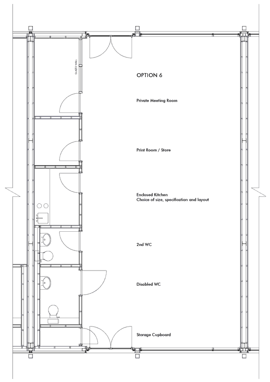
This is a combination of Options 5 with the addition of a separate office / meeting room and a print / store room.
This combination of all the options can be fitted for a price of £19300 + VAT.
Individually, the prices are:
| 2nd Toilet: |
£4225 + VAT |
| Enclosed Kitchen: |
£5562 + VAT |
| Print / Store Room: |
£3400 + VAT |
| Meeting Room / Office Room: |
£6115 + VAT |
All options are designed to be available singularly or in combination with other options.
|