| |
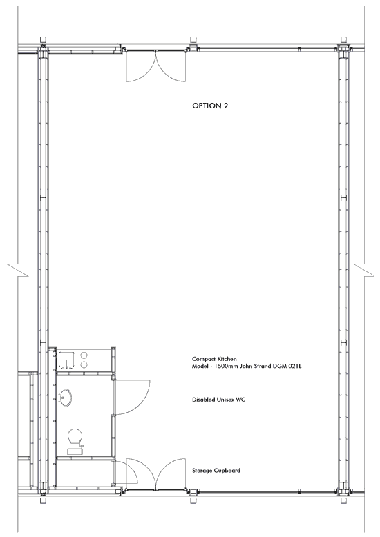
Office Floor Layout Options
|
|

This sleek looking Galley Kitchen has been fitted with black laminate doors, stainless steel handles, worktop, sink and backboard.
There is a stainless steel microwave to complement the design and the kitchen also includes 2 electric hotplates with safety timer and a 120 litre integrated refrigerator with ice-box.
Other models are available with a choice of door finishes.
Size: 1500W x 600D x 2000H
This option is available complete with all necessary installation and decoration, for £3975 + VAT.
|