Office Floor Layout Options

option 1

A second toilet can be added to your unit if required.

This option, which includes all sanitary ware, ventilation and Gyproc Gypwall partitioning, is available for £5750 + VAT.


Click to view larger image

option1option2

Option 1

Option 2

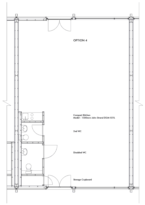
option3option4
Option 3
Option 4
option5option 6
Option 5
Option 6