Office Floor Layout Options

option 1

This is a combination of options 3 and 4 and can be fitted for a price of £9350 + VAT.

 

Click to view larger image

option1option2

Option 1

Option 2

option3option4
Option 3
Option 4
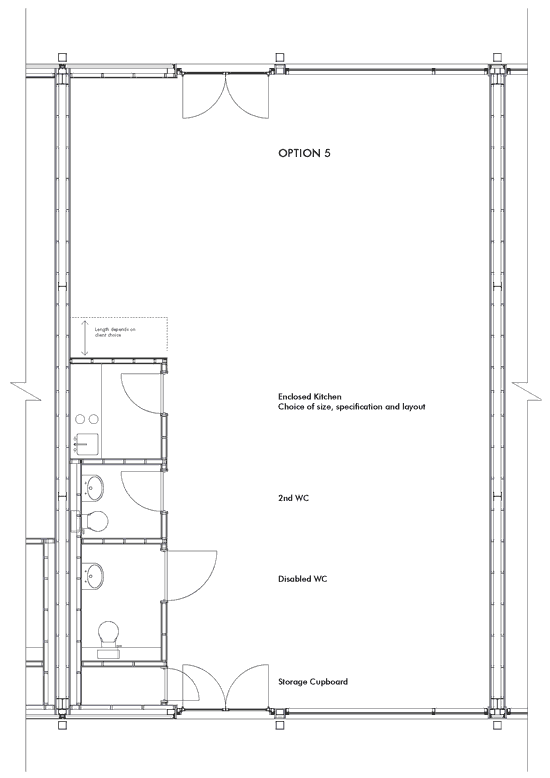
option5option 6
Option 5
Option 6